Die Drehorte
"Charleston"
Stand: 20.06.2012, letzte Durchsicht 27.11.2024
Gebäude und Orte für Charleston, SC
Öffentlicher Park in Charleston
Church Street, Kirche St. Philips und das Dock Street Theater
Flüchtlingslager / Militärverwaltung Charleston
Gebäude und Orte für Charleston, SC
|
Beschreibung |
Haus von Nicholas Fabray, Charleston, SC |
|||||||||||||
|
Drehort real |
außen: 20
South Battery, innen: unbekannt |
|||||||||||||
|
1 |
2 |
3 |
4 |
5 |
6 |
7 |
8 |
9 |
10 |
11 |
12 |
13 |
14 |
15 |
|
Folge 01, Szene 15, 17, 29 Folge 04, Szene 14 |
||||||||||||||
|
|
|
|
|
|
|
|
|
|
|
|
|
|
|
|

Film: Straße, links Haus von Nicholas Fabray Real: South Battery, gleicher Blinkwinkel © GSV

Film: Haus von Nicholas Fabray (außen) Real: 20 South Battery © GSV
Der Blick über die South Battery auf den oberen Bildern reicht bis zur East Bay Street in Hintergrund, die am Hafenbecken von Charleston entlang führt. Auf der rechten (gegenüberliegenden) Straßenseite befindet sich eine Grünanlage.
Das Wohnhaus South Battery 20 diente für die Außenaufnahmen der Szenen in Nicholas Fabray's Haus. Hierbei wurden jeweils zwei unterschiedliche Einstellungen verwendet: Gesamtansicht im unveränderten Original, und Ansicht auf der Veranda mit links eingesetzter Haustür-Blende.
20 South Battery Google Maps
Die Innenaufnahmen fanden in einem anderen, noch unbekannten Gebäude statt.
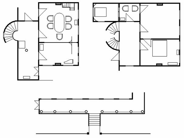
Drehortübersicht "Fabray-Haus"
Unten Außendrehort (nur Straße, Aufgang, Veranda und eingesetzte Haustür-Blende), oben Innendrehort. Erdgeschoss mit Diele, Salon, Speisezimmer (vom Salon mit Schiebewand getrennt), Treppe. Obergeschoss mit Flur, Madeline's Zimmer, Nicholas' Salon und Schlafzimmer.

Navigation: Zum Inhaltsverzeichnis - Zur Startseite
|
Beschreibung |
Haus von James und Ashton Huntoon, Charleston, SC |
|||||||||||||
|
Drehort real |
26 South
Battery, |
|||||||||||||
|
1 |
2 |
3 |
4 |
5 |
6 |
7 |
8 |
9 |
10 |
11 |
12 |
13 |
14 |
15 |
|
Folge 05, Szene 09, 29, 30 Folge 06, Szene 02, 06, 09, 10, 12 |
||||||||||||||
|
|
|
|
|
|
|
|
|
|
|
|
|
|
|
|

Film: Haus von James Huntoon (außen) Real: Haus 26 South Battery © GSV
Von der Innenansicht des Original-Gebäudes liegen keine Bilder vor.
Das Wohnhaus South Battery 26 diente als Haus von James und Ashton Huntoon und wurde für alle Außen- und Innenaufnahmen verwendet, so auch für die Sezessionsfeier auf der Straße vor dem Haus. Während des Wahlkampfes (Kockaden-Verkäufer vor dem Haus) wurde die Grünanlage auf der gegenüberliegenden Straßenseite (Battery Park) durch eine Häuser-Kulisse verdeckt.
26 South Battery Google Maps
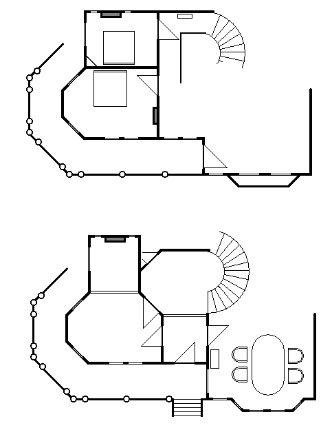
Drehortübersicht "Huntoon-Haus Charleston"
Unten: Erdgeschoss mit Veranda, Speiseraum (rechts), Halle, Salon (links), Treppe. Oben: Obergeschoss mit Schlafzimmer (links Mitte) und Gästezimmer (für Brett, links oben).

Navigation: Zum Inhaltsverzeichnis - Zur Startseite
|
Beschreibung |
Baumwollspinnerei "Hazard & Main", Charleston, außen |
|||||||||||||
|
Drehort real |
Gebäude
in |
|||||||||||||
|
1 |
2 |
3 |
4 |
5 |
6 |
7 |
8 |
9 |
10 |
11 |
12 |
13 |
14 |
15 |
|
Folge 04, Szene 09 |
||||||||||||||
|
|
|
|
|
|
|
|
|
|
|
|
|
|
|
|

Film: Baumwollspinnerei, außen Real: 28 State Street, Charleston, SC (Hintergrund)

Film: Häuserfassaden gegenüber Real: State Street, Charleston, SC
Die Szene mit Orry und Brett vor der Baumwollspinnerei "Hazard & Main" wurde in der State Street in Charleston gedreht. Als Gebäude der Spinnerei diente das Lagerhaus 28 State Street, Ecke Queens Street, das mit einer entsprechenden Rampe und Beschriftung versehen wurde.
28 State Street Google Maps
Navigation: Zum Inhaltsverzeichnis - Zur Startseite
Öffentlicher Park in Charleston
|
Beschreibung |
Parkanlage in Charleston, SC |
|||||||||||||
|
Drehort real |
|
|||||||||||||
|
1 |
2 |
3 |
4 |
5 |
6 |
7 |
8 |
9 |
10 |
11 |
12 |
13 |
14 |
15 |
|
Folge 05, Szene 32 Folge 11, Szene 26 |
||||||||||||||
|
|
|
|
|
|
|
|
|
|
|
|
|
|
|
|

Film:
Wahlrede vom Balkon,
1860
real: Fireproof Building, Straßenseite,
Das "Fireproof Building" wurde 1827 als feuersicheres Aktenarchiv mit besonders starken Mauern errichtet und ist heute das älteste Bauwerk dieser Art in den USA. Es dient als Kulisse für James Huntoon's Wahlrede zur Sezession, allerdings auf der der Straße abgewandten, jedoch spiegelgleichen Gebäudeseite, die zum Washington Park hinaus liegt.

Film: die Offiziere verlassen den Ort real: das Fireproof Building und der Obelisk, 1910
In diesem historischen Bild von 1910 ist die Park-Seite des Fireproof Buildings zusammen mit dem an den Bürgerkrieg (!) erinnernden Obelisken und der Büste von Henry Timrod zu sehen. Der Obelisk erscheint zweimal, und zwar in der gleichen Szene wie oben, als Billy und seine Offizierskameraden den Ort verlassen (oben, nur der Sockel zu sehen), und auch viele (Drehbuch-) Jahre später, als Rafe Beaudeen erneut versucht, Madeline für sich zu gewinnen (unten). Die charakteristische, den Park umgrenzende Bogenmauer ist ebenfalls in beiden Szenen zu sehen.

Luftaufnahme © Google Maps, links das Fireproof
Building, rechts unten der Obelisk und Teile der Mauer

In der erstgenannten Szene passieren Billy und die Offiziere noch einen weiteren Statuensockel. Dieser müsste vermutlich noch die beschädigte Figur von William Pitt getragen haben, die 1985 in ein Museum gebracht und durch eine Bronce-Figur von George Washington ersetzt wurde. Nach diesem ist auch die gesamte Grünanlage "Washington Park" benannt, gelegen in Charleston zwischen Broad, Meeting und Charlmers Street.
Washington Park Google Maps
Navigation: Zum Inhaltsverzeichnis - Zur Startseite
|
Beschreibung |
Eine Straße in Charleston, SC |
|||||||||||||
|
Drehort real |
|
|||||||||||||
|
1 |
2 |
3 |
4 |
5 |
6 |
7 |
8 |
9 |
10 |
11 |
12 |
13 |
14 |
15 |
|
Folge 06, Szene 03, 05 |
||||||||||||||
|
|
|
|
|
|
|
|
|
|
|
|
|
|
|
|

Film: Straßenszene am Wahltag 1860 real: 64 - 68 Church Street © GSV

Film: Straßenszene am Wahltag 1860 real: 64 Church Street © GSV
Dieser Abschnitt der Church Street im historischen Stadtteil von Charleston war Kulisse für einige Straßenszenen zum Zeitpunkt der Präsidentschaftswahl Ende 1860.
Church Street Google Maps
Navigation: Zum Inhaltsverzeichnis - Zur Startseite
|
Beschreibung |
Einfache Damenpension, Charleston, SC |
|||||||||||||
|
Drehort real |
Heim
House, |
|||||||||||||
|
1 |
2 |
3 |
4 |
5 |
6 |
7 |
8 |
9 |
10 |
11 |
12 |
13 |
14 |
15 |
|
Folge 10, Szene 15, 22 Folge 11, Szene 12, 27, 28, 29 Folge 12, Szene 33 |
||||||||||||||
|
|
|
|
|
|
|
|
|
|
|
|
|
|
|
|

Film: Außenansicht Pension von Ms. Shoup Real: Heim House, außen

Film: am unteren Treppenabsatz real: am unteren Treppenabsatz

Film: der Salon Real: der Salon
Das auf das Jahr 1887 datierte, holzvertäfelte Haus mit seinen verspielten Erkern und Türmchen und den grünen Fassadenapplikationen steht auf den Angelino Heights von Los Angeles, CA und befindet sich in Privatbesitz. Es wurde, zusammen mit anderen Häusern derselben Siedlung, im vikotorianischen Stil für James B. Mayer, Inhaber der Southern Pacific Transfer Truck Company, erbaut. Nach seinem zweiten Besitzer, dem Großbraumeister Ferdinand A. Heim wird es heute das "Heim House" genannt. Die im Kern historisch erhaltene Siedlung wurde 1976 in das Historische Nationalregister aufgenommen, das Heim House selbst im Jahr 2003.
Heim House, Carroll Avenue 1320 Google Maps
Drehort-Übersicht "Pension von Ms. Shoup"
Erdgeschoss: Aufgang, Eingangshalle, Treppe, Besucherzimmer (oben)

Obergeschoss: Madeline's Zimmer (das Zimmer von Mrs. Wescott befindet sich eine Etage darüber)

Navigation: Zum Inhaltsverzeichnis - Zur Startseite
|
Beschreibung |
Handelshaus, Charleston, SC |
|||||||||||||
|
Drehort real |
South
Carolina Society Hall, |
|||||||||||||
|
1 |
2 |
3 |
4 |
5 |
6 |
7 |
8 |
9 |
10 |
11 |
12 |
13 |
14 |
15 |
|
Folge 11, Szene 25 |
||||||||||||||
|
|
|
|
|
|
|
|
|
|
|
|
|
|
|
|

Film:
Handelshaus
1865
real: South Carolina Society Hall,
Das Eingangsportal und der große Saal der South Carolina Society Hall war Drehort der Szene, als Elkanah Bent 1865 in Charleston einen Waffenhändler aufsucht. Das Gebäude an der 72 Meeting Street wurde 1804 errichtet sowie 1825 erweitert und mit dem Portikus versehen. Es wird noch heute von der South Carolina Society genutzt und ist nicht öffentlich zugänglich.

Das historische Bild von 1915 verdeutlicht die Lage der Society Hall zur nur wenig nördlich gelegenen St. Michael's Church an der Meeting Street, (siehe unten).
72 Meeting Street Google Maps
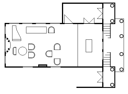
Drehort-Übersichtsplan "Handelshaus Charleston"

Navigation: Zum Inhaltsverzeichnis - Zur Startseite
|
Beschreibung |
ein Kirchturm, Charleston, SC |
|||||||||||||
|
Drehort real |
St.
Michaels Church, |
|||||||||||||
|
1 |
2 |
3 |
4 |
5 |
6 |
7 |
8 |
9 |
10 |
11 |
12 |
13 |
14 |
15 |
|
Folge 10, Szene (15) Folge 11, Szene (25) |
||||||||||||||
|
|
|
|
|
|
|
|
|
|
|
|
|
|
|
|

Film:
St. Michaels Church,
Die Episkopalkirche St. Michaels an der Meeting Street wurde ab 1752 errichtet. Das Motiv ihres leuchtend-weißen Turmes wurde im Film als Vorspann für Szenen in Charleston verwendet. Eine Straßenszene im Blickfeld der Kirche kommt nicht vor (wohl weil die Kirche an einer verkehrsreichen Kreuzung steht).
Meeting / Broad Street Google Maps
Navigation: Zum Inhaltsverzeichnis - Zur Startseite
|
Beschreibung |
Haus von Forbes LaMotte, Charleston, SC |
|||||||||||||
|
Drehort real |
außen: 14 Legare Street, Charleston, SC innen: unbekannt |
|||||||||||||
|
1 |
2 |
3 |
4 |
5 |
6 |
7 |
8 |
9 |
10 |
11 |
12 |
13 |
14 |
15 |
|
Folge 05, Szene (31) |
||||||||||||||
|
|
|
|
|
|
|
|
|
|
|
|
|
|
|
|

Film: Stadthaus von Forbes LaMotte, außen Real: 14 Legare Street © GSV
Von diesem Haus wird nur das Eingangstor gezeigt, durch die Ashton Huntoon ihren Liebhaber Forbes LaMotte besucht. Die Innenaufnahmen (ein Schlafzimmer) können keinem Gebäude zugeordnet werden.

Hier noch ein historisches Bild dieses Eingangs von 1910, dessen Baustil "Charleston Gate" genannt wird.
14 Legare Street Google Maps
Navigation: Zum Inhaltsverzeichnis - Zur Startseite
Church Street, Kirche St. Philips und das Dock Street Theater
|
Beschreibung |
eine Straße in Charleston, SC |
|||||||||||||
|
Drehort real |
|
|||||||||||||
|
1 |
2 |
3 |
4 |
5 |
6 |
7 |
8 |
9 |
10 |
11 |
12 |
13 |
14 |
15 |
|
Folge 07, Szene 18 Folge 09, Szene (35) Folge 10, Szene 19, 21 Folge 11, Szene (13), (24), 30 Folge 12, Szene (03), 21, (32) |
||||||||||||||
|
|
|
|
|
|
|
|
|
|
|
|
|
|
|
|

Film: Charleston, Sezessionsfeier in den
Straßen
Real: hinten St. Philips Church, 146 Church Street,
vorne links Dock Street Theater, rechts die
Hugenottenkirche
Die Episkopal-Kirche St. Philips, errichtet 1836 - 1850, liegt im relativ verkehrsberuhigten Teil der historischen Altstadt von Charleston. Hier wurden einige Straßenszenen gedreht, etwa die Sezessionsfeier von 1860, als Ashton ihren Liebhaber Forbes LaMotte sucht und dort findet (auf dem Real-Bild rechts am Eisenzaun der 1845 in der heutigen Form fertiggestellten Hugenottenkirche).

Film: Charleston nach Kriegsende, 1865 Real: links von der Kirche die niedrigen Häuser
Das Real-Bild zeigt links von der Kirche St. Phillips die niedrigen, mit Holz verkleideten Häuser, die in der Szene, als Charles nach Kriegsende seinen Sohn übernimmt, den Hintergrund bilden. Am Kirchturm leicht zu erkennen, befindet sich diese Szenerie in der Church Street zwischen der Kirche und dem Dock Street Theater.
Chuch Street und St. Michaels Church Google Maps

Film: Charleston, Miles Colbert's Kanzlei Real: Church Street, Blickrichtung Nord
Links von dem auf dem Real-Bild links sichtbaren Dock Street Theater (siehe auch oben) wurde die Kanzlei-Tafel an einer Hauswand angebracht und die Vorspann-Szenen zu Miles Colbert gedreht. Im Hintergrund ist ist erneut der Turm von St. Philips sowie die Spitztürme der Hugenottenkirchen zu sehen.
Das Dock Street Theater (heute 135 Church Street, Charleston, SC) ist das letzte original-erhaltene Hotel der Vorkriegszeit in Charleston. Es wurde um 1809 als Planter's Hotel errichtet, der Säulen-bestandene Eingang und der gusseiserne Balkon kamen bis 1855 hinzu. Vor dem Bürgerkrieg äußerst beliebt, verfiel es danach stark, bis es die Stadt in den 1930er Jahren als Theater ausbaute und ihm den Namen eines früheren Bühnenhauses an der Queen Street (damals Dock Street) gab. Das Portal, die Eingangshalle und der Saal sind Drehorte Szenen in ganz anderen Städten (Abolitionistische Versammlung in Philadelphia 1848, anschließende Aufwartung von Sam Greene, James Huntoon's Sezessions-Rede in New Orleans 1859, und der Vorlauf zum Präsidentenball im "Stockwood Hotel", Richmond, VA, 1861, siehe jeweils dort). Die Säulen am Eingang sind auch in zahlreichen Straßen- und Vorspannszenen für Charleston zu erkennen.
Church Street mit Dock Street Theater und French Hugenot Church Google Maps

Film: auf dem Friedhof nahe St. Philips
Real: Grabstein von John C. Calhoun,
in Charleston
St. Philips Church West Cementry
Der im Film im Halbdunkel gezeigte Grabstein von John C. Calhoun befindet sich auf dem westlichen Friedhof der St. Philips Church an der Church Street in Charleston. Calhoun, einer der herausragendsten Politiker aus South Carolina der Vorkriegszeit, starb am 31. März 1850 und wurde auf dem Friedhofsteil jenseits der Straße beigesetzt, weil er in einem Vorort und nicht in Charleston selbst geboren war (im Gegensatz zu seiner Frau, die getrennt von ihm nahe der Kirche liegt).
Church Street Cemetery Google Maps
Navigation: Zum Inhaltsverzeichnis - Zur Startseite
Flüchtlingslager und Militärverwaltung Charleston
|
Beschreibung |
Madeline's Flüchtlingslager in Charleston Militärverwaltung Charleston |
|||||||||||||
|
Drehort real |
|
|||||||||||||
|
1 |
2 |
3 |
4 |
5 |
6 |
7 |
8 |
9 |
10 |
11 |
12 |
13 |
14 |
15 |
|
Folge 10, Szene 20 Folge 11, Szene 09, 10, 23 Folge 12, Szene 04 |
||||||||||||||
|
|
|
|
|
|
|
|
|
|
|
|
|
|
|
|

Film: Lager mit Eingangstor Real: Aiken-Rhett-Haus, Tor zum Hof

Film: Lager, Gebäude im Hintergrund Real: Aiken-Rhett-Haus, Blick vom Hof

Film: Eingang zur Militärverwaltung Charleston Real: Aiken-Rhett-Haus, Seiteneingang

Film: im Treppenhaus der Militärverwaltung Real: Aiken-Rhett-Haus, Treppenhaus
Das Aiken-Rhett-Haus inklusive Nebengebäuden und dem von einer Mauer umstandenen Hofplatz ist noch heute im originalen, unrestaurierten Zustand seiner Bauzeit erhalten. Das Anwesen befindet sich außerhalb des historischen Stadtkerns von Charleston und macht einen vergleichsweise heruntergekommenen äußerlichen Eindruck, der für die Szenen während der Kriegszeit sehr passend ist. Das von Madeline betreute Flüchtlingslager wurde im Hof insziniert, dessen dichter Baumbestand und die Einmauerung ein düsteres Ambiente vermittelt - verstärkt durch die Regen-Szene.
Die kurze Szene, in der Rafe mit Madeline in der Militärverwaltung von Charleston nach den zwangsrekrutierten Kindern fahnden, wurde ebenfalls im Aiken-Rhett-Haus gedreht. Hier wurde der Seiteneingang und das innere Treppenhaus verwendet.
Das Aiken-Rhett House wurde 1820 durch den Kaufmann John Robinson errichtet. 1827 verkaufte er es an William Aiken, Sr. Im November 1863 gastierte hier der konföderierte Präsident Jefferson Davis einige Tage bei Gouverneur William Aiken, Jr. 1864 war das Gebäude für rund ein Jahr Hauptquartier des konföderierten Generals Pierre G. T. Beauregard, damals Kommandeur des Districts of South Carolina. Aiken's Tochter und ihr Mann Major A. B. Rhett führten 1892 das Anwesen weiter, das bis heute in Familienbesitz ist.
Hier eine Luftaufnahme, die einen guten Gesamteindruck des Anwesens Aiken-Rhett House bietet (© Google Maps). Das Eingangstor zum Hof (Film: zum Flüchtlingslager) befindet sich am oberen Bildrand. Der Seiteneingang (Film: Militärverwaltung) list links am gelben Haupthaus neben der Reihe parkender Autos.
Aiken Rhett House, 48 Elisabeth Street Google Maps

Navigation: Zum Inhaltsverzeichnis - Zur Startseite
|
Beschreibung |
Sümpfe bei Charleston |
|||||||||||||
|
Drehort real |
|
|||||||||||||
|
1 |
2 |
3 |
4 |
5 |
6 |
7 |
8 |
9 |
10 |
11 |
12 |
13 |
14 |
15 |
|
Folge 04, Szene 27 |
||||||||||||||
|
|
|
|
|
|
|
|
|
|
|
|
|
|
|
|

Film: Sümpfe bei
Eine besondere Attraktion von Charleston sind die im Wasser stehenden Zypressen im Cypress Garden, auch Lowcountry Swamp genannt. Hier wurde die Hütte von Aunt Bell Nin nach originalen Vorlagen als Kulisse gebaut. Die Stadt fand so großen Gefallen daran, dass die Filmgesellschaft die Hütte nach den Dreharbeiten stehen ließ und diese einige Jahre lang die Touristen erfreute.
Navigation: Zum Inhaltsverzeichnis - Zur Startseite
|
Beschreibung |
Fort Sumter, bei Charleston, SC |
|||||||||||||
|
Drehort real |
außen: Fort Sumter, bei Charleston, SC innen: Fort Moultrie, Sullivan's Island, bei Charleston, SC |
|||||||||||||
|
1 |
2 |
3 |
4 |
5 |
6 |
7 |
8 |
9 |
10 |
11 |
12 |
13 |
14 |
15 |
|
Folge 06, Szene 16, 38, 39 |
||||||||||||||
|
|
|
|
|
|
|
|
|
|
|
|
|
|
|
|

Film: Fort Sumter, Außenansicht Real: Fort Sumter, SC (Luftaufnahme) © Google Maps

Film: Aufangsszene Fort Sumter, innen Real: Fort Moultrie, gleiche Stelle
Film: Fort Sumter, bei den Geschützen Real: Fort Moultrie, oben die Geschütze

Real: Fort Moultrie, Pulverlager Real: Fort Moultrie, SC (Luftaufnahme) © Google Maps
Die Außenansichten von Fort Sumter fanden mit dem originalen Fort (heute Museum) in der Hafeneinfahrt von Charleston, SC statt. Die Innen-Szene mit Billy Hazard und Major Anderson wurde dagegen auf dem nahegelegenen Fort Moultrie gedreht, das ebenfalls den Hafen von Charleston bewachte. Die Luftaufnahme von Fort Moultrie zeigt, dass Billy den Weg aus dem von Mauern umstandenen Pulverlager-Gebäude links oben auf die darunterliegende Freiflläche genommen hat und dann mit Major Anderson auf einer als Kulisse angefertigten Holztreppe über die links befindliche Mauer auf die nächste Ebene zu den Geschützen gestiegen ist.

Die nächtliche Szene mit dem Beschuss von Fort Sumter wurde ebenfalls auf Fort Moultrie gedreht. An dem linken, ummauerten Erdhügel eindeutig erkennbar wurde das Geschütz verwendet, das auf dem obigen Bild zwischen Major Anderson und Billy zu sehen ist.

Auch für die darauffolgende Appell-Szene, angeblich in Washington, wurde Fort Moultrie bei Charleston benutzt, wie der hinter der Mauer zu erkennende Kirchturm verrät. Durch geschickte Wahl der Kameraposition verbergen sich die anderen Wohnhäuser hinter der Mauer und einem Erdwall (der aber auch eine Kulissen sein kann).
Fort Sumter, bei Charleston, SC Google Maps
Fort Multrie, Sullivans Island Google Maps
Navigation: Zum Inhaltsverzeichnis - Zur Startseite
Hafenstadt in South Carolina mit 107.844 Einwohnern (2007). Gründung 1670 als Charles Town (nach dem damaligen englischen König Charles II.). Die Stadt entwickelte sich rasch zum Drehpunkt des Sklavenhandels. Nach dem Unabhängigskeitskrieg 1783 in Charleston umbenannt, war die Stadt bis 1788 Hauptstadt des jungen Bundesstaates South Carolina. Militärisch war die Hafeneinfahrt 1776 durch Fort Moultrie erfolgreich verteidigt worden. 1861 begann hier mit den Schüssen auf Fort Sumter der Bürgerkrieg, nachdem insbesondere von Charleston die Ansicht ausging, die Rechte der einzelnen Staaten stünden über jenen der Zentralregierung in Washington, was letztlich nur durch die Sezession des Staates 1860 durchsetzbar schien.
Nach dem verlorenen Krieg ging die Bedeutung der Stadt stark zurück. Der Wiederaufbau erfolgte größtenteils mit Geldern der Besatzer aus dem Norden. Das Erdbeben am 31.08.1886 zerstörte etwa ein Viertel der Stadt erneut, eine Restauration erfolgte hauptsächlich in der historischen Stadtmitte. Die jüngste Zerstörung geht auf Hurrican Hugo zurück, der 1989 einen Schaden von 2,8 Mrd. Dollar anrichtete.
Seit den 1930er Jahren wurde der Historic District in der Downtown von Charleston herausgebildet mit dem Ziel, möglichst viele der historischen Bauten und Privatgebäude äußerlich zu erhalten und in Benutzung zu halten, als Privatwohnhaus, als öffentliches Gebäude oder als Museum.
Hier einige authentische Bilder von Charleston zu Kriegsende 1865:

East Battery, das erste Haus ist ausgebrannt South Battery, vorne demontiertes Geschütz

Blick von der Circular
Church
Circular Church (mit Gerüst), Mills House
(ausgebrannt), hinten St.Michaels Church
Navigation: Zum Inhaltsverzeichnis - Zur Startseite